
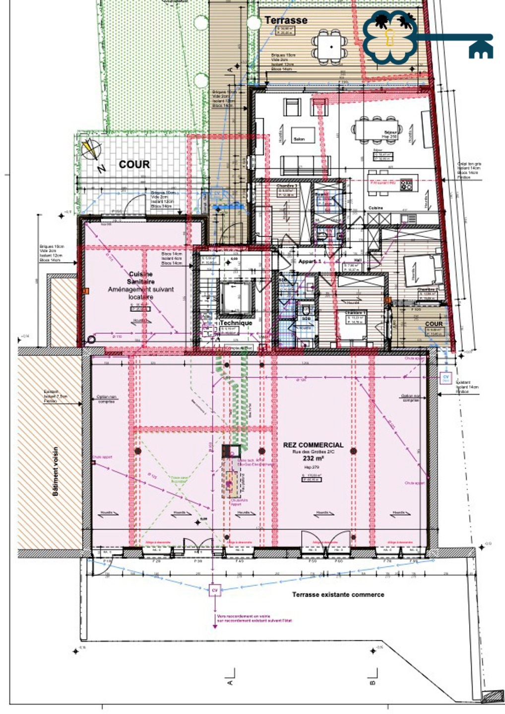
La clé des maisons vous propose ce rez commercial situé au coeur du village touristique de Han/Lesse. Il représente une opportunité unique pour les investisseurs. Avec une superficie généreuse de 232 m² complétée par une magnifique terrasse à l'avant de 94,50 m² et à l'arrière de 56 m². Construit par la renommée société BALFROID-MAGNEE de WELLIN, dont la réputation d'excellence et de savoir-faire n'est plus à démontrer. Ce local est vendu CASCO, permettant une personnalisation complète selon vos besoins. Le prix de vente est fixé à 470 000 € hors TVA sous le régime de la TVA à 21%. Livré avec la cave n°8 et son carport muni de panneaux photovoltaïques non-inclus dans le prix (32 500€ HTVA). L'immeuble comprend également 5 appartements et 2 duplex, offrant une dynamique résidentielle à l'environnement commercial. Des emplacements de parking pour le commerce (max 4) sont disponibles en option, ajoutant ainsi une valeur supplémentaire. Possibilité de scinder le rez en 2 entités distinctes.Profitez de cette occasion exceptionnelle pour établir ou étendre votre présence dans un des sites les plus prisés de la région. Info et renseignements : Anne 0496/12 64 40. Documents téléchargeables sur : https://www.lacledesmaisons.be/fr/bien/a-vendre/commerce/5580-rochefort-han-sur-lesse/5970568
Rue des Grottes 2 Boîte C - 5580 Han-sur-Lesse
Référence | 5970568 |
---|---|
Catégorie | Rez commercial |
Surface habitable | 232 m² |
Disponibilité | à la livraison |
Accès handicapés | Oui |
---|---|
Ascenseur | Oui |
Profession libérale poss. | Oui |
---|---|
Jugement en cours | Non |
Permis de bâtir | Oui |
Permis de lotir | Oui |
Droit de préemption | Non |
Largeur de la vitrine commerciale (longueur) | 17.5 |
---|
Carport | Oui |
---|---|
Année de rénovation | 2024 |
Type de toit | en pente |
Sous régime TVA | Oui |
---|
Section | A |
---|---|
Numéro (n°) | 978a2P0000 |
Égouts | Oui |
---|---|
Électricité | Oui |
Type d'environnement | central |
---|---|
Risque d'inondation (type innondation) | zone innondable effective |
Cave | Oui |
---|
Bien en construction | Oui |
---|